Mo-Fr 09:00-18:00

 

Anspruchsvolle 3 Zimmer Wohnung in 79539 Lörrach
Kaufpreis: 515.000,00 € + 20.000,00 € TG Stellplatz

Traumhafte Maisonettewohnung mit 4,5 Zimmer in 79539 Lörrach. NEUBAU!

Objektbeschreibung:


Diese Phantastische 4.5 Maisonettewohnung verfügt in einer Etage über 1 großes Schlafzimmer mit Separatem Ankleideraum, 1 Kinderzimmer, 1 Arbeitsraum, 2 Badezimmern und ein Abstellraum.

In der nächsten Etage steht Ihnen eine Lichtdurchflutende offene Küche mit Wohn und / Essbereich und einer große Terrasse zur Verfügung, eine Vorratskammer, 1 ausreichend große Diele und ein separates Gäste-WC.

Diese Hochwertige und Attraktive 4,5 Zimmer Maisonettewohnung ereignet sich im 1UG eines Luxusobjekts. Die Immobilie befindet sich an einem Einzigartigen Standort, wobei Sie über die Dächer Lörrachs blicken können und nur wenige Autominuten von der Stadtmitte entfernt ist.

Besondere Ausstattung

✓ Smart-Home-System
✓ ideosprechanlage
✓ Temperaturüberwachung
✓ Fußbodenheizung
✓ Elektronische Rollläden
✓ Personen Aufzug
✓ PKW-Aufzug und Doppelparker
✓ Ladestation für Elektrofahrzeuge
✓ Isolierverglasung

Bilder




3,5-Zimmer Wohnung in Rheinfelden 79618

Objektbeschreibung:


Diese Gemütlich 3,5 Zimmerwohnung mit ca. 120,33m² ist bereits vermietet und hervorragend als Kapitalanlage geeignet. Die Kaltmiete beträgt 1.500,00€
Die Wohnung verfügt über zwei große Schlafzimmer, 2 kleinere Abstellräume, ein Heiz/-und Waschraum, ein Badezimmer, ein kleines Gäste-WC und ein separates Ankleidezimmer.
Das Objekt befindet sich in der Stadtmitte von Rheinfelden, Grenznah der Schweiz. Die verschiedenen Einkaufsläden sowie Drogerien und Restaurants sind mit einfachen Fußschritten erreichbar.

Besondere Ausstattung

✓ Smart-Home-System
✓ ideosprechanlage
✓ Temperaturüberwachung
✓ Fußbodenheizung
✓ Elektronische Rollläden
✓ Personen Aufzug
✓ PKW-Aufzug und Doppelparker
✓ Ladestation für Elektrofahrzeuge
✓ Isolierverglasung

Bilder




4,5-Zimmer Wohnung in Schopfheim 79650

Objektbeschreibung:


Diese Schöne 4,5 Zimmer Wohnung mit ca. 108m² Wohnfläche befindet sich im 1.OG und unmittelbar in der Nähe des Hauptbahnhofes, Kindergarten, Schulen, und verschiedenen Lebensmittelläden mitten im Dreiländereck Schopfheims. Die Individuellen Freizeitmöglichkeiten verfügt über Spielplätze, Fitnessstudio, Freizeitbad, Tennis-Club und Fußballplatz

Die Wohnung verfügt über drei große Schlafzimmer, ein Badezimmer, ein Gäste-WC, eine separate Garderobenraum und ein geräumigen Wohn/-und Essbereich mit Balkon Ein Schiebeparkplatz (15.000,00 €) ist im Gesamtpreis mitenthalten.

Besondere Ausstattung

✓ Massivbau
✓ Videosprechanlage
✓ Fußbodenheizung
✓ Temperaturüberwachung
✓ Personenaufzug
✓ Videosprechanlage
✓ Smart-Home-System
✓ Temperaturüberwachung
✓ Blockheizkraftwerk
✓ Kinderspielplatz
✓ Ladestation für Elektrofahrzeuge

Bilder




3-Zimmer Wohnung in Lörrach 79539

Objektbeschreibung:


Diese Hochwertige und Attraktive 3 Zimmer Wohnung, ereignet sich im 3 UG eines Luxusobjekts. Die Immobilie befindet sich an einem Einzigartigen Standort, wobei Sie über die Dächer Lörrachs blicken können und nur wenige Autominuten von der Stattmitte entfern ist.

In der Wohnung verfügen Sie über 2 Große Schlafzimmern mit ausreichend viel Staumöglichkeiten, 2 großen Badezimmern, 2 kleineren Abstellräume und ein mit Panoramafenstern Licht durchflutendes Wohnzimmer mit offener Küche. Auf der Terrasse die Sie vom Wohnraum betreten können, könne Sie es sich mit Ihren Liebsten bequem machen.
Die Gesamte Wohnfläche beträgt ca. 131,16m²

Besondere Ausstattung

✓ Massivbau
✓ Barrierefrei
✓ PKW-Aufzug
✓ Ladestation für Elektrofahrzeuge
✓ Isolierverglasung
✓ Videosprechanlage
✓ Smart-Home-System
✓ Temperaturüberwachung
✓ Fußbodenheizung
✓ Elektrische Rollläden

Bilder




Anspruchsvolle Wohnanlage durch solide Bauqualität im Herzen Schopfheim´s


Dieses schöne Neubauobjekt befindet sich unmittelbar in der Nähe des Hauptbahnhofes, Kindergarten, Schulen, und verschiedenen Lebensmittelläden. Die Individuellen Freizeit Möglichkeiten verfügt über Spielplätze Marktplatz, Fitnessstudio, Freizeitbad, Tennis-Club und Fußballplatz.

Das Moderne Massivbau KFW-Effizienzhaus verfügt über
• Smart-Home-system
• Videosprechanlage
• Temperaturüberwachung
• Fußbodenheizung
• Elektrische Rollläden
• Personenaufzug
• Barrierefrei (EG)
• Tiefgarage
• Außenstellplätze
• Ladestation Elektrofahrzeuge
• Isolierverglasung
• Blockheizkraftwerk
• Niedrige Heizkosten
• Moderne Bäder

Durch KFW-Baustein gibt es ein Zuschuss bis zu 18.000 € vom Staat.

2-Zimmer-Whg, Kaufpreis: 233.000,00 € + 25.000 € Tiefgaragenstellplatz

Die Lichtdurchflutenden 2 Zimmerwohnungen mit ca.46 m² bietet nicht nur über ein modernes Designe zum Wohlfühlen an, sondern veranlagt ein Separates Kellerabteil sowie ein eigener Geschützter Balkon, ein PKW und Fahrrad Stellplatz.


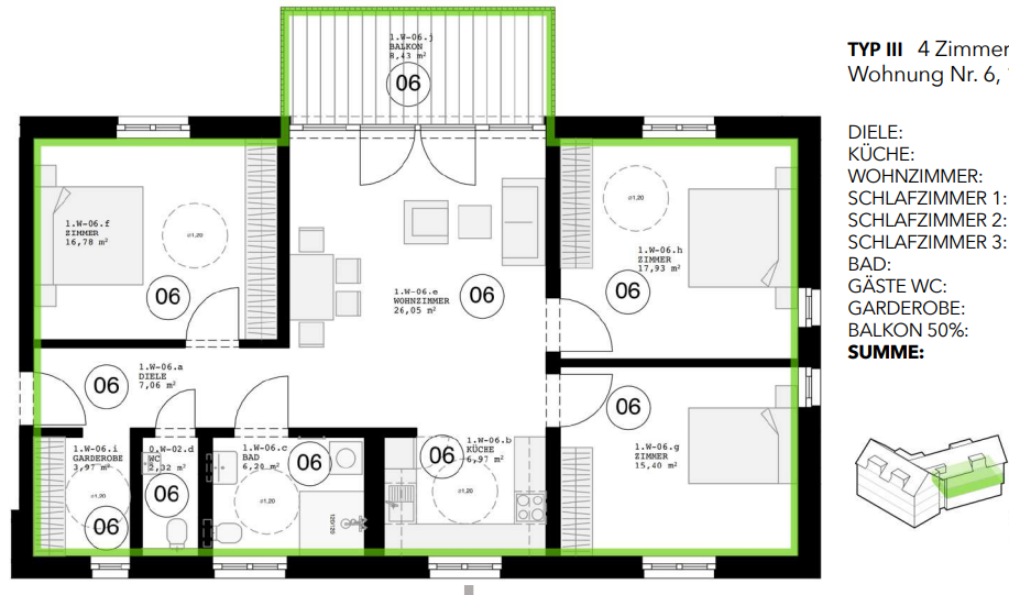
4-Zimmer-Whg, Kaufpreis: 364.000,00 € + 25.000 € Tiefgaragenstellplatz

Die Geräumigen 4 Zimmerwohnungen mit ca. 76 m² bietet nicht nur von Innen viel Platz an, sondern auch auf dem Balkon, können Sie es sich mit Ihren Liebsten bequem machen.
Die Ruhige Lage schafft für Jung und Alt eine ausgezeichnete Atmosphäre.
--!>

Beratung der Kunden

Die Immobilienberatung erfolgt durch die Zusammenarbeit mit vielen Finanzierungsvermittlern.

Betreuung von Kunden

Durch die Betreuung arrangiert sich eine Gute und vertraute Zusammenarbeit mit den Kunden


Sollten Sie noch Fragen haben oder weitere Informationen benötigen, kontaktieren Sie uns bitte unter unsere Kontaktformular oder rufen Sie uns direkt an.